These images are used in good faith. The copyright owner may contact this website at mail@hamptonwickhistory.org.uk
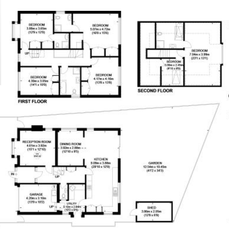
6 Monmouth Avenue for sale August 2006









Estate Agent Publicity Material
These images are used in good faith. The copyright owner may contact this website at mail@hamptonwickhistory.org.uk
6 Monmouth Avenue for sale August 2006